Thông tin dự án:

  • Chủ dự án: Anh Tuấn
  • Diện tích đất: 107.25m2
  • Diện tích sàn xây dựng: 240m2 (3 sàn)
  • Số tầng: 3

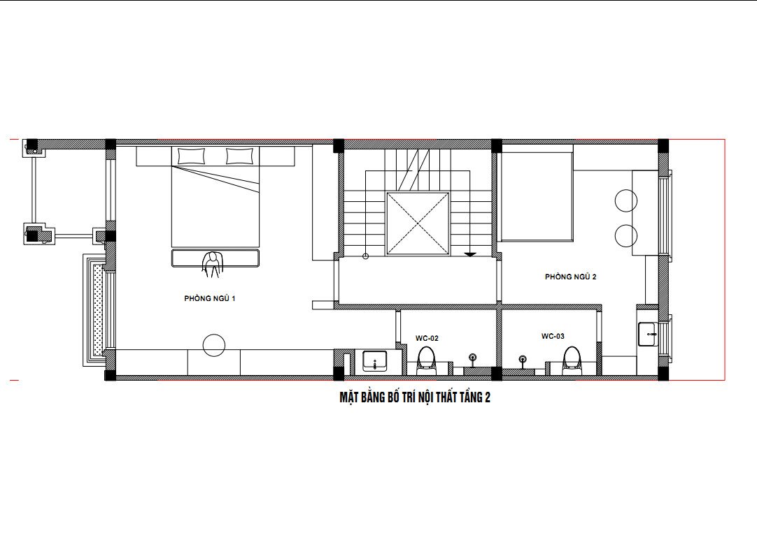
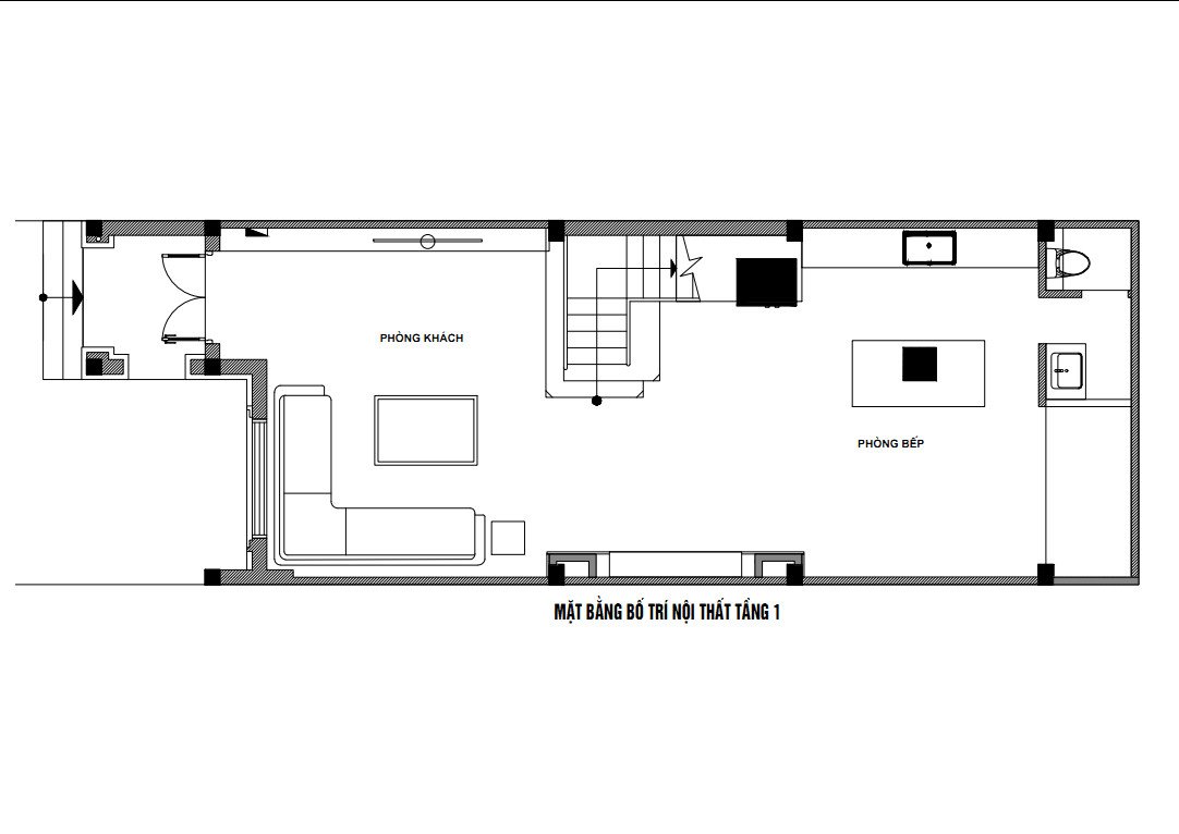
A. Hình ảnh mặt bằng

B. Hình ảnh thi công 

Đánh Giá Bài Viết

Để lại một bình luận

Email của bạn sẽ không được hiển thị công khai. Các trường bắt buộc được đánh dấu *

0818 357 222